Sommer Rostock

Bungalow mit Pool und Sauna in Ribnitz-Damgarten

verkauft
Makellos EFH RDG - Titelfoto
Preis
EUR 289.000
Wohnfläche
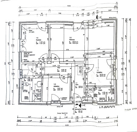
ca. 82 m²
Grundstücksfläche
463 m²

Objektbeschreibung

- Fertigteilhaus (SCANHAUS SH-83-A)
- Baujahr: 2011
- 3 Wohnräume, Küche, Duschbad, HWR
- Einbauküche (SACHSENKÜCHE) inkl.
- überdachte Terrasse
- Fenster: Kunststoff, 3-fach isoliert
- hochwertige Innen-Ausstattung:
- Fussböden: Fliesen  
- Zentralheizung (Erdgas, BUDERUS)
- ruhiges, sichtgeschütztes Grundstück
  (Wohngebiets-Randlage)
- beheizter Pool mit Gegenstromanlage,
  Luft-Wärmepumpe + Solarthermie für
  Pool-Beheizung (2015)
- PV-Anlage (Balkon-Kraftwerk)
- Saunafass mit Holzofen (2014)
- 1.500 L Regenwassertank
- Anschluss an Orts-Kanalisation
- 463 m² Erbpacht-Grundstück
- Doppel-Carport, Gerätehaus
- Internet: Glasfaseranschluss

Lagebeschreibung

- Mecklenburg-Vorpommern
- LK Vorpommern-Rügen
- Stadt Ribnitz-Damgarten
- Flur 11, Flurstücke 422, 424, 437
- ruhige Lage in Wohngebiets-Randlage
- ca. 1,5 km bis Stadtmitte / Saaler Bodden
- ca. 27 km bis Rostock
Alle Referenzen
Immobilie bewerten lassen
Jetzt Immobilie  bewerten lassen!
Zur Immobilien­bewertung 
nach oben