Sommer Rostock

Vermietete Single-Wohnung, Hansaviertel Rostock

Preis
EUR 119.000
Courtage
3,57 % inkl. 19% MwSt.
Wohnfläche
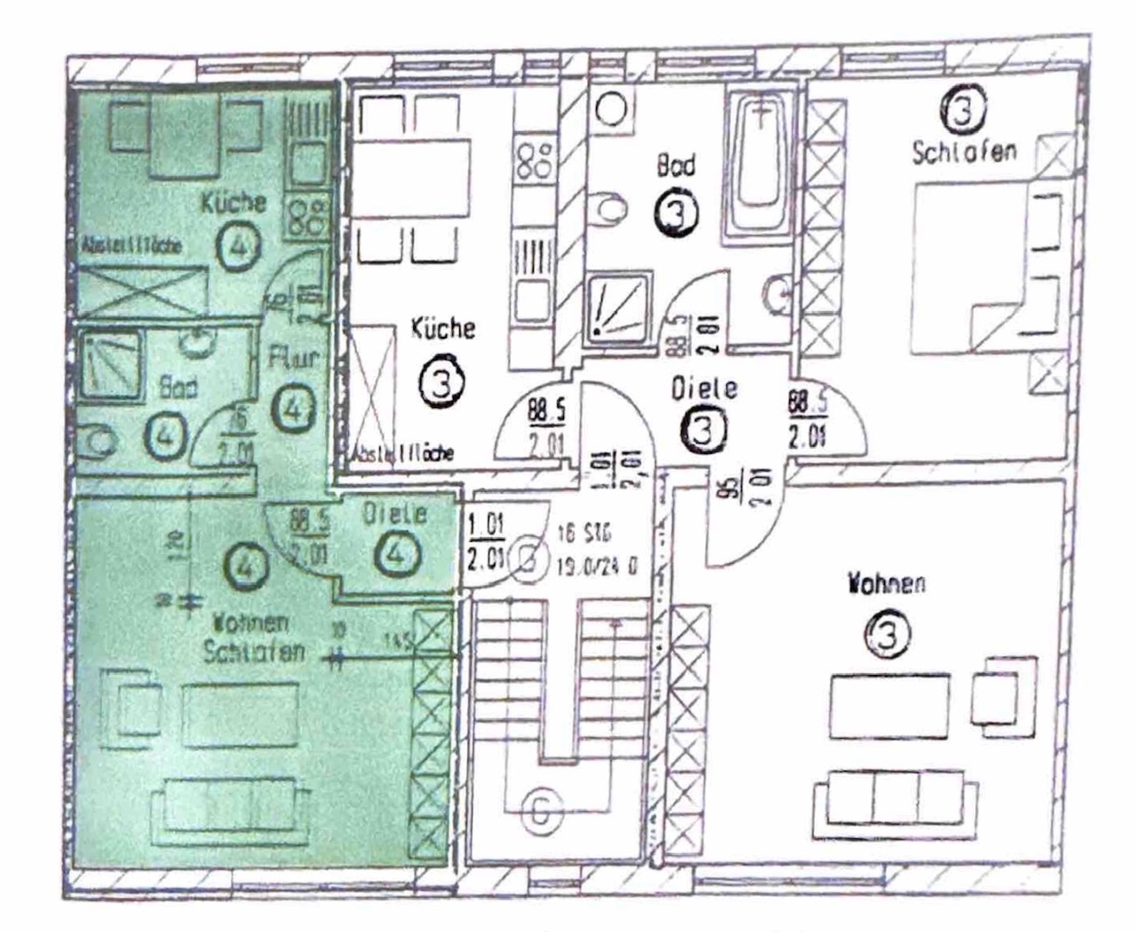
ca. 34 m²
Zimmeranzahl
1

Objektbeschreibung

- Gebäude-Baujahr: 1935
- Kernsanierung: 1995
- ca. 34 m² Wohnfläche
- gepflegter Zustand
- 1 Wohnraum
- Küche, Einbauküche inklusive
- Duschbad
- Fenster: 2-fach isoliert, Kunststoff
- Fussböden: Holz-Dielen, Fliesen
- Zentralheizung (Fernwärme)
- Abwasser ans Ortsnetz
- eigener Abstellraum im KG
- Fahrradabstellraum im KG
  (Gemeinschaftseigentum)
- Wasch-/Trocken-Raum im KG
  (Gemeinschaftseigentum)
- vermietet (z.Z. 400,- EUR NKM)

Lagebeschreibung

- Mecklenburg-Vorpommern
- Hansestadt Rostock
- Ortsteil Hansaviertel
- beliebte Wohnlage
- Nähe Uni-Klinikum, Ostseestadion
- ca. 10 Minuten bis zum Stadtzentrum

Alle Immobilien
Immobilie bewerten lassen
Jetzt Immobilie  bewerten lassen!
Zur Immobilien­bewertung 
nach oben