Sommer Rostock

Single-Wohnung im Rostocker Hansaviertel

Preis
EUR 139.000
Courtage
3,57 % inkl. 19% MwSt.
Wohnfläche
ca. 35 m²
Zimmeranzahl
1

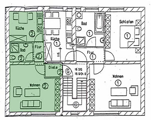
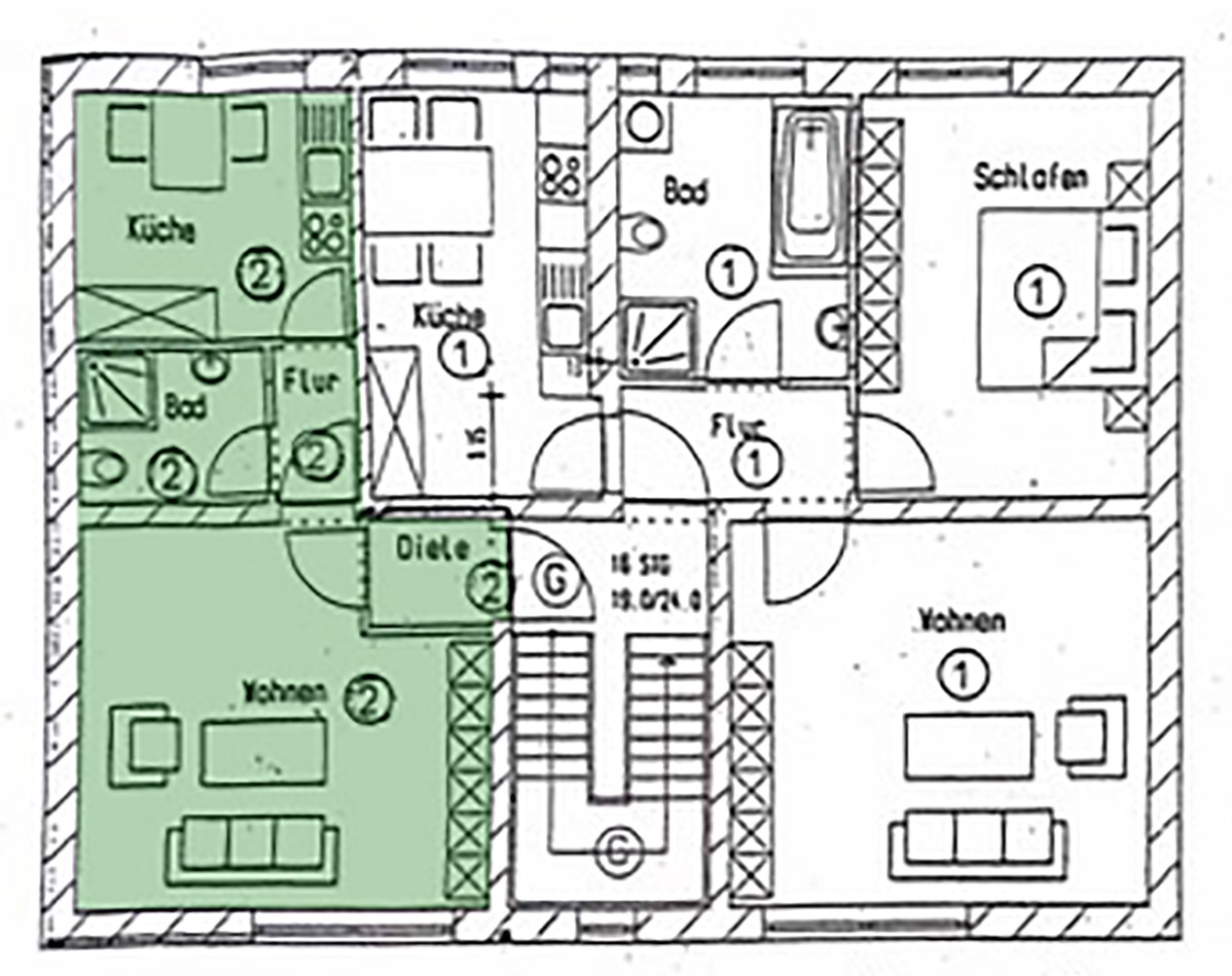
Objektbeschreibung

- Gebäude-Baujahr: 1920er
- Kernsanierung: 1995
- ca. 35 m² Wohnfläche
- 1 Wohnraum
- Küche (Einbauküche inklusive)
- Duschbad
- Fenster: 2-fach isoliert, Kunststoff
- Fussböden: Textilbelag, Fliesen
- Zentralheizung (Fernwärme)
- Gebäude-Endenergieverbrauch:
  103 kWh/(m²a)
- Abwasser ans Ortsnetz
- eigener Abstellraum im KG
- Fahrradabstellraum im KG
  (Gemeinschaftseigentum)
- Hauswartraum im KG
  (Gemeinschaftseigentum)
- leerstehend
- sofort neu vermietbar

Lagebeschreibung

- Mecklenburg-Vorpommern
- Hansestadt Rostock
- Ortsteil Hansaviertel
- beliebte Wohnlage
- Nähe Uni-Klinikum, Ostseestadion
- ca. 10 Minuten bis zum Stadtzentrum
Alle Immobilien
Immobilie bewerten lassen
Jetzt Immobilie  bewerten lassen!
Zur Immobilien­bewertung 
nach oben