
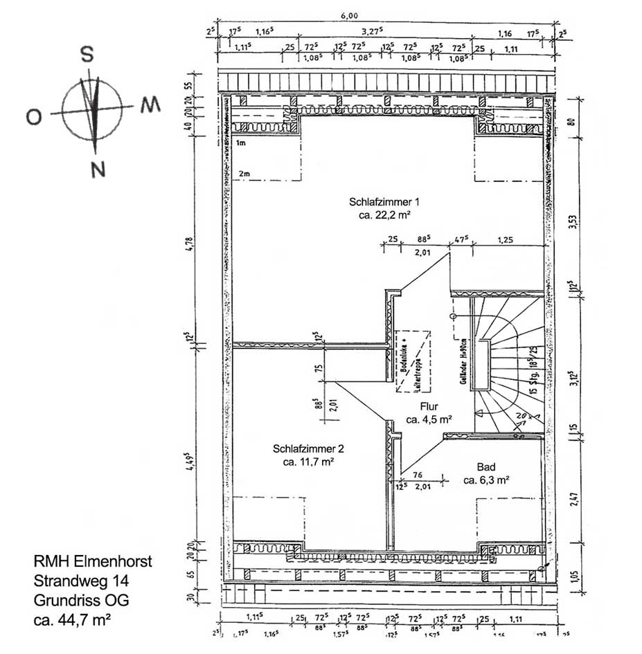
Renoviertes Reihenmittelhaus in Elmenhorst bei Rostock-Warnemünde
Preis
419.000 EUR
Courtage
3,57 % inkl. 19 % USt.
Wohnfläche
ca. 106 m²
Grundstücksfläche
169 m²
Objektbeschreibung
Objektart
- Reihenmittelhaus (RMH)
- EG, OG, DG
- Terrasse
- 2 Kfz-Außenstellplätze
- Reihenmittelhaus (RMH)
- EG, OG, DG
- Terrasse
- 2 Kfz-Außenstellplätze
Wohnfläche
- ca. 106 m²
- ca. 106 m²
Grundstück
- 169 m²
- 169 m²
Objektdaten
- Baujahr 1998
- renoviert 2025
- sehr guter optischer und baulicher Zustand
- Massivbau, Klinkerfassade, Ziegeldach
- Kunststofffenster (2-fach verglast)
- Fußböden: Laminat, Fliesen
- 3 Zi, Kü, Vollbad, Gä-WC, Flure, Lager,
- Baujahr 1998
- renoviert 2025
- sehr guter optischer und baulicher Zustand
- Massivbau, Klinkerfassade, Ziegeldach
- Kunststofffenster (2-fach verglast)
- Fußböden: Laminat, Fliesen
- 3 Zi, Kü, Vollbad, Gä-WC, Flure, Lager,
ausgebauter Dachboden
- Gasheizung Bj 2024
- teilweise elektrische Rollläden
- DG ausgebaut mit fester Treppe
- Terrasse mit ca. 15 m² inkl. elektrischer Markise
- Glasfaseranschluss verfügbar
- Gasheizung Bj 2024
- teilweise elektrische Rollläden
- DG ausgebaut mit fester Treppe
- Terrasse mit ca. 15 m² inkl. elektrischer Markise
- Glasfaseranschluss verfügbar
Lagebeschreibung
- Mecklenburg-Vorpommern
- Landkreis Rostock
- Gemeinde Elmenhorst-Lichtenhagen
- westlicher „Speckgürtel“ von Rostock
- in Ostseenähe ca. 1,6 km
- direkter unverbaubarer Blick auf den Küstenwald
- Warnemünde ca. 7 km
- Landkreis Rostock
- Gemeinde Elmenhorst-Lichtenhagen
- westlicher „Speckgürtel“ von Rostock
- in Ostseenähe ca. 1,6 km
- direkter unverbaubarer Blick auf den Küstenwald
- Warnemünde ca. 7 km
- Rostock ca. 13 km